Nhà nhập khẩu – phân phối – sản xuất tụ bù, cuộn kháng, recloser và nhiều thiết bị công nghiệp khác…

Liên hệ mua hàng - hỗ trợ

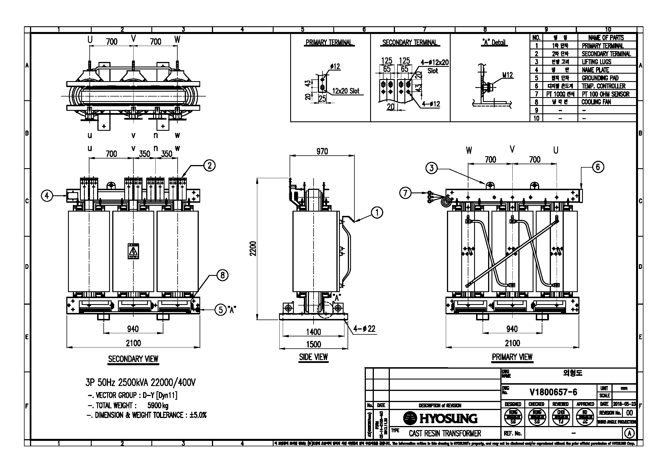
Máy biến áp khô Hyosung 2500kVA 22/0.4kV CU-CU

Liên hệ

(đang cập nhật)
Bạn cần tư vấn mẫu này?
Một cách đơn giản hơn. Hãy nhập SĐT
Hoặc gọi ngay cho chúng tôi:

MBA khô Hyosung có xuất xứ từ Hàn Quốc được AT Đông Dương nhập khẩu và phân phối tại Việt Nam.

  1. Máy biến áp khô Hyosung được chứng nhận chất lượng bởi ISO và CESI
  2. Tính năng, đặc điểm:
    – Các đặc tính tự dập tắt của epoxy làm giảm đáng kể sự lan truyền và ảnh hưởng của hỏa hoạn, và khả năng nổ gần như không tồn tại.
    – Dễ dàng vận chuyển và lắp đặt với cấu trúc đơn giản
    – hông có chất độc (dầu hoặc khí) thải ra
    – Tuổi thọ lâu
    – Sử dụng nhựa epoxy cao cấp
    Epoxy Resin: sử dụng nhựa epoxy lớp H, cao hơn so với lớp F tiêu chuẩn, là vật liệu cách nhiệt chính của máy biến áp khuôn để kiểm soát lão hóa nhiệt và kéo dài tuổi thọ chung của máy biến áp bằng ba lần.
    – Độ ổn định và độ bền cao với quản lý chất lượng nghiêm ngặt
    + Cấu trúc dây: khi xây dựng xuyên tâm (RB) của cuộn dây áp suất cao lớn, chênh lệch nhiệt độ giữa tâm và bề mặt của cuộn dây cao hơn, sau đó nứt trong cuộn dây có thể gây ra một phần xả. Do đó, khi RB lớn, một ống dẫn khí được đưa vào làm cho máy lọc RB mỏng hơn, sau đó sự chênh lệch nhiệt độ giữa tâm và bề mặt bị giảm và nứt được ngăn chặn.
    + Khi ống dẫn khí được chèn vào, sự phân bố điện trường của cuộn dây áp suất cao trở nên ổn định và điện áp chịu đựng đàn hồi hơn chống lại sự gia tăng bên ngoài.
    – Bằng cách áp dụng kỹ thuật phân tích mới nhất, máy biến áp Hyosung có thể hoạt động trong điều kiện khắc nghiệt.
    – Đáp ứng nhu cầu các khách hàng một cách tốt nhất.

         3. Thông số kỹ thuật:

 4. Bản vẽ kỹ thuật

  • Mã SP: HS-H2500CRT
  • 3 pha, 50Hz
  • Điện áp: 22/0.4kV (22000/400V)
  • Dung lượng: 2500kVA

 

Lên đầu trang